- 足立区の不動産ならハウスセイラーズ
- 新築一戸建てをエリアから探す
- 足立区
- 西新井本町
- 足立区西新井本町5丁目 新築戸建 全2棟
新築一戸建て
足立区西新井本町5丁目 新築戸建 全2棟
情報更新日:2026/01/15 次回更新予定日:2026/01/29 取引条件有効期限:2026/01/29
所在地東京都足立区西新井本町5丁目[周辺地図]
交 通東武伊勢崎線「西新井」駅徒歩14分




■大師前駅徒歩12分、西新井駅徒歩14分、江北駅徒歩17分、3駅2路線利用可
■アリオ西新井など周辺に買い物施設のそろう便利な住環境
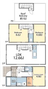
■ルーフバルコニーは第2のリビング!趣味のスペースとしてお使いいただけます
■プライバシーが守られる2階LDKは2面採光の明るい空間です
■会話もはずむ対面は小さなお子さまにも目が届いて安心
■キッチンは食洗機付きで家事の時短をサポートします
■モニターインターフォン付きで来客を確認できるのでセキュリティも安心
当日のご案内もお気軽にお問い合わせください。
営業時間中【9:30~18:30】はお電話でのお問い合わせがスムーズです。
■アリオ西新井など周辺に買い物施設のそろう便利な住環境
■ルーフバルコニーは第2のリビング!趣味のスペースとしてお使いいただけます
■プライバシーが守られる2階LDKは2面採光の明るい空間です
■会話もはずむ対面は小さなお子さまにも目が届いて安心
■キッチンは食洗機付きで家事の時短をサポートします
■モニターインターフォン付きで来客を確認できるのでセキュリティも安心
当日のご案内もお気軽にお問い合わせください。
営業時間中【9:30~18:30】はお電話でのお問い合わせがスムーズです。
担当スタッフより

- 藤野 晃次
- 大師前駅徒歩12分、西新井駅徒歩14分、江北駅徒歩17分!3駅2路線利用可!アリオ西新井など周辺に買い物施設のそろう便利な住環境。ルーフバルコニー付き2階リビングのコンパクトな2LDK+S(納戸)・3階建てが2邸誕生!
各棟情報
物件詳細情報
物件No.20000435171
| 所在地 | 東京都足立区西新井本町5丁目 | ||
|---|---|---|---|
| 交通 | 東武伊勢崎線「西新井」駅徒歩14分 日暮里・舎人ライナー「江北」駅徒歩17分 |
||
| 間取 | 2SLDK~2SLDK | ||
| 土地面積 | 35.14m² ~ 37.23m² 実測 | ||
| 建物面積 | 70.06m² ~ 71.57m² 実測 | ||
| 販売戸数 | 2戸 | 総戸数 | 全2戸 |
| 構造・規模 | 木造 3階建て | 築年・入居 | 2026年3月 |
| 建物現況 | 建築中 | 建築確認番号 | 第KBI-SGM25-10-1064号、他 |
| 引渡時期 | 相談 | 地目 | 宅地 |
| 用途地域 | 準工業地域 | 建ぺい率 | 80% |
| 容積率 | 200% | 都市計画 | 市街化区域 |
| 権利種類 | 所有権 | 接道 | 西側5M公道に接道 |
| 小学校区 | 西新井小学校(400m) | 中学校区 | 第五中学校(1040m) |
| 取引態様 | 媒介 | ||
| 設備 | 公営水道、本下水、都市ガス | ||
| 備考・制限等 | 省エネルギー性能:目安光熱費 | ||
こだわり項目
始発駅平坦地屋上ワイドバルコニー食器洗浄機浄水器システムキッチンカウンターキッチン3口以上コンロトイレ2ヶ所温水洗浄便座シャワー付洗面台浴室乾燥機浴室1坪以上リビング階段TVモニタ付インターホン24時間換気システム小学校800m以内保育園・幼稚園800m以内スーパー400m以内コンビニ400m以内公園800m以内通風良好
- ※価格は物件の代金総額を表示しており、消費税が課税される場合は税込み価格です。(1,000円未満は切り上げ。)
税率は引き渡し時期により異なりますので、各物件の詳細につきましてはお問い合わせください。 - ※敷地権利が借地権のものは価格に権利金を含みます。
- ※制作中に内容が変更される場合もありますので、あらかじめご了承ください。
- ※購入の前には物件内容や契約条件についてご自身で十分な確認をしていただくようにお願いいたします。
- ※完成予想図はいずれも外構、植栽、外観等実際のものとは多少異なることがあります。
- ※CG合成の画像の場合、実際とは多少異なる場合があります。
周辺地図
周辺施設一覧
- ショッピングセンター
- スーパー
- コンビニ
- ドラッグストア
- ホームセンター
- 飲食店
- その他店舗
- 商店街
- 大学
- 専門学校
- 高校・高専
- 中学校
- 小学校
- 保育園
- 幼稚園
- 公民館・児童館
- 病院
- 郵便局
- 役所
- 図書館
- 金融機関
- 警察・消防
- 趣味・娯楽施設
- 公園・運動施設
- 周辺の街並み
- 駅
- その他
お問い合せ先
- 株式会社ハウスセイラーズ 本社 売買営業部
- お電話でのお問い合わせは
03-3856-0141「ホームページを見た」とお問い合わせください - 東京都足立区鹿浜7-18-1
- 営業時間:9:30〜18:30
- 定休日:毎週火曜日・水曜日
- 免許番号:東京都知事(8)第62333号
- 足立区の不動産ならハウスセイラーズ
- 新築一戸建てをエリアから探す
- 足立区
- 西新井本町
- 足立区西新井本町5丁目 新築戸建 全2棟





















