- 足立区の不動産ならハウスセイラーズ
- 新築一戸建てをエリアから探す
- 足立区
- 伊興
- E号棟 足立区伊興3丁目 新築戸建 全7棟
新築一戸建て
E号棟 足立区伊興3丁目 新築戸建 全7棟
情報更新日:2026/02/15 次回更新予定日:2026/03/01
所在地東京都足立区伊興3丁目[周辺地図]
交 通東武伊勢崎線「竹ノ塚」駅徒歩10分



■『竹ノ塚』駅徒歩10分の好立地!
■全7邸のコミュニティ!
■LDKはゆとりの15帖超!
■人気の2階建て!
■対面式のキッチンからはリビングを見渡せます。
当日のご案内もお気軽にお問い合わせください。
営業時間中【9:30~18:30】はお電話でのお問い合わせがスムーズです。
■全7邸のコミュニティ!
■LDKはゆとりの15帖超!
■人気の2階建て!
■対面式のキッチンからはリビングを見渡せます。
当日のご案内もお気軽にお問い合わせください。
営業時間中【9:30~18:30】はお電話でのお問い合わせがスムーズです。
担当スタッフより

- 服部 謙介
- 『竹ノ塚』駅徒歩10分の好立地!全7邸のコミュニティ!LDKはゆとりの15帖超!人気の2階建て!対面式のキッチンからはリビングを見渡せます。
各棟情報
物件詳細情報
物件No.20000441284-003
| 所在地 | 東京都足立区伊興3丁目 | ||
|---|---|---|---|
| 交通 | 東武伊勢崎線「竹ノ塚」駅徒歩10分 | ||
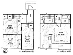
| 間取 | 1SLDK | ||
| 土地面積 | 89.03m² 実測 | ||
| 建物面積 | 78.97m² 実測 | ||
| 販売戸数 | 7戸 | 総戸数 | 全7戸 |
| 構造・規模 | 木造 2階建て | 築年・入居 | 2026年3月 |
| 建物現況 | 建築中 | 建築確認番号 | 第HPA-25-09958-1号 |
| 駐車スペース | 1台(カースペース) | 引渡時期 | 相談 |
| 地目 | 宅地 | 用途地域 | 第一種中高層住居専用地域 |
| 建ぺい率 | 60% | 容積率 | 200% |
| 都市計画 | 市街化区域 | 権利種類 | 所有権 |
| 小学校区 | 伊興小学校(210m) | 中学校区 | 第十四中学校(740m) |
| 取引態様 | 媒介 | ||
| 備考・制限等 | 省エネルギー性能:目安光熱費 | ||
こだわり項目
平坦地LDK15帖以上設計住宅性能評価付建設住宅性能評価付(新築時)システムキッチントイレ2ヶ所浴室1坪以上浴室に窓
- ※価格は物件の代金総額を表示しており、消費税が課税される場合は税込み価格です。(1,000円未満は切り上げ。)
税率は引き渡し時期により異なりますので、各物件の詳細につきましてはお問い合わせください。 - ※敷地権利が借地権のものは価格に権利金を含みます。
- ※制作中に内容が変更される場合もありますので、あらかじめご了承ください。
- ※購入の前には物件内容や契約条件についてご自身で十分な確認をしていただくようにお願いいたします。
- ※完成予想図はいずれも外構、植栽、外観等実際のものとは多少異なることがあります。
- ※CG合成の画像の場合、実際とは多少異なる場合があります。
周辺地図
周辺施設一覧
- ショッピングセンター
- スーパー
- コンビニ
- ドラッグストア
- ホームセンター
- 飲食店
- その他店舗
- 商店街
- 大学
- 専門学校
- 高校・高専
- 中学校
- 小学校
- 保育園
- 幼稚園
- 公民館・児童館
- 病院
- 郵便局
- 役所
- 図書館
- 金融機関
- 警察・消防
- 趣味・娯楽施設
- 公園・運動施設
- 周辺の街並み
- 駅
- その他
お問い合せ先
- 株式会社ハウスセイラーズ 本社 売買営業部
- お電話でのお問い合わせは
03-3856-0141「ホームページを見た」とお問い合わせください - 東京都足立区鹿浜7-18-1
- 営業時間:9:30〜18:30
- 定休日:毎週火曜日・水曜日
- 免許番号:東京都知事(8)第62333号
- 足立区の不動産ならハウスセイラーズ
- 新築一戸建てをエリアから探す
- 足立区
- 伊興
- E号棟 足立区伊興3丁目 新築戸建 全7棟














