- 足立区の不動産ならハウスセイラーズ
- 中古マンションをエリアから探す
- 足立区
- 西新井
- ライオンズガーデン西新井大師壱番館
中古マンション
ライオンズガーデン西新井大師壱番館
情報更新日:2025/11/16 次回更新予定日:2025/11/30
所在地東京都足立区西新井5丁目[周辺地図]
交 通日暮里・舎人ライナー「西新井大師西」駅徒歩9分





■西新井大師西駅徒歩9分、日暮里・舎人ライナーで西日暮里駅・日暮里駅へのダイレクトアクセス可能
■周辺に買い物施設のそろう便利な住環境
■最上階南西北角部屋につき陽当たり・眺望・通風良好
■浴室乾燥機つきで雨の日のお洗濯も安心
■防犯カメラ、オートロック完備の安心のセキュリティ
当日のご案内もお気軽にお問い合わせください。
営業時間中【9:30~18:30】はお電話でのお問い合わせがスムーズです。
■周辺に買い物施設のそろう便利な住環境
■最上階南西北角部屋につき陽当たり・眺望・通風良好
■浴室乾燥機つきで雨の日のお洗濯も安心
■防犯カメラ、オートロック完備の安心のセキュリティ
当日のご案内もお気軽にお問い合わせください。
営業時間中【9:30~18:30】はお電話でのお問い合わせがスムーズです。
担当スタッフより

- 石橋 裕之
- 西新井大師西駅徒歩9分!周辺に買い物施設のそろう便利な住環境。最上階南西北角部屋につき陽当たり・眺望・通風良好!防犯カメラ、オートロック完備の安心のセキュリティ。
物件詳細情報
物件No.31021656866
| 所在地 | 東京都足立区西新井5丁目 | ||
|---|---|---|---|
| 交通 | 日暮里・舎人ライナー「西新井大師西」駅徒歩9分 | ||
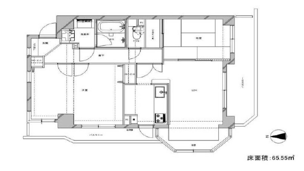
| 間取 | 3LDK + 和 6 洋 4.5・5.8 (和室6帖、洋室4.5帖、洋室5.8帖) | ||
| 専有面積 | 66.55m² (壁芯) | ||
| バルコニー面積 | 12.05m² 南西向き | ||
| 総戸数 | 全24戸 | 構造・規模 | 鉄筋コンクリート造 7階建て 7階部分 |
| 築年・入居 | 1996年3月築 | 現況 | 空室 |
| 引渡時期 | 相談 | 権利種類 | 所有権 |
| 管理費 | 15,200円/月 | 修繕積立金 | 15,080円/月 |
| 管理形態 | 日勤 一部委託 | 管理会社 | 大京アステート |
| 駐車場 | 敷地内にあり 料金:12,000円/月 | 駐輪場料金 | 250円/月 |
| 小学校区 | 西新井第二小学校(910m) | 中学校区 | 西新井中学校(380m) |
| 取引態様 | 媒介 | ||
| 設備 | 公営水道、本下水 システムキッチン,給湯,追焚機能,温水洗浄便座,洗濯機置場,室内洗濯機置場,浴室乾燥機,エアコン,CATV,CS,2面バルコニー,インターネット対応,出窓,収納スペース,エレベータ,宅配ボックス,駐輪場,外観タイル張り,オートロック,モニター付きインターホン,モニター付きオートロック,火災警報器等設置済 |
||
| 備考・制限等 | 省エネルギー性能:目安光熱費 | ||
こだわり項目
南向き角部屋最上階全居室収納出窓2面以上バルコニーシステムキッチンカウンターキッチン3口以上コンロ温水洗浄便座浴室乾燥機浴室暖房追焚機能室内洗濯機置き場洗濯機置き場TVモニタ付インターホンオートロック24時間宅配ボックス防犯カメラ駐輪場CSCATV保育園・幼稚園800m以内スーパー400m以内コンビニ400m以内公園800m以内通風良好
- ※価格は物件の代金総額を表示しており、消費税が課税される場合は税込み価格です。(1,000円未満は切り上げ。)
税率は引き渡し時期により異なりますので、各物件の詳細につきましてはお問い合わせください。 - ※敷地権利が借地権のものは価格に権利金を含みます。
- ※制作中に内容が変更される場合もありますので、あらかじめご了承ください。
- ※購入の前には物件内容や契約条件についてご自身で十分な確認をしていただくようにお願いいたします。
- ※完成予想図はいずれも外構、植栽、外観等実際のものとは多少異なることがあります。
- ※CG合成の画像の場合、実際とは多少異なる場合があります。
周辺地図
周辺施設一覧
- ショッピングセンター
- スーパー
- コンビニ
- ドラッグストア
- ホームセンター
- 飲食店
- その他店舗
- 商店街
- 大学
- 専門学校
- 高校・高専
- 中学校
- 小学校
- 保育園
- 幼稚園
- 公民館・児童館
- 病院
- 郵便局
- 役所
- 図書館
- 金融機関
- 警察・消防
- 趣味・娯楽施設
- 公園・運動施設
- 周辺の街並み
- 駅
- その他
お問い合せ先
- 株式会社ハウスセイラーズ 本社 売買営業部
- お電話でのお問い合わせは
03-3856-0141「ホームページを見た」とお問い合わせください - 東京都足立区鹿浜7-18-1
- 営業時間:9:30〜18:30
- 定休日:毎週火曜日・水曜日
- 免許番号:東京都知事(8)第62333号
- 足立区の不動産ならハウスセイラーズ
- 中古マンションをエリアから探す
- 足立区
- 西新井
- ライオンズガーデン西新井大師壱番館





















