- 足立区の不動産ならハウスセイラーズ
- 新築一戸建てをエリアから探す
- 足立区
- 興野
- 足立区興野2丁目 新築戸建
新築一戸建て
足立区興野2丁目 新築戸建
情報更新日:2026/02/07 次回更新予定日:2026/02/21
所在地東京都足立区興野2丁目[周辺地図]
交 通日暮里・舎人ライナー「扇大橋」駅徒歩12分

■扇大橋駅徒歩12分、日暮里・舎人ライナーで西日暮里駅・日暮里駅へのダイレクトアクセス可能
■周辺に買い物施設のそろう便利な住環境
■プライバシーが守られる2階LDKは全方面採光の明るい空間
■使いやすいL型のキッチンは空間を有効活用できます
■浴室乾燥機は雨の日のお洗濯も安心
当日のご案内もお気軽にお問い合わせください。
営業時間中【9:30~18:30】はお電話でのお問い合わせがスムーズです。
■周辺に買い物施設のそろう便利な住環境
■プライバシーが守られる2階LDKは全方面採光の明るい空間
■使いやすいL型のキッチンは空間を有効活用できます
■浴室乾燥機は雨の日のお洗濯も安心
当日のご案内もお気軽にお問い合わせください。
営業時間中【9:30~18:30】はお電話でのお問い合わせがスムーズです。
担当スタッフより

- 藤野 晃次
- 扇大橋駅徒歩12分、日暮里・舎人ライナーで西日暮里駅・日暮里駅へのダイレクトアクセス可能!プライバシーが守られる2階LDKは全方面採光の明るい空間。コンパクトな2LDK+S(納戸)・3階建て!
物件詳細情報
物件No.31022003733
| 所在地 | 東京都足立区興野2丁目 | ||
|---|---|---|---|
| 交通 | 日暮里・舎人ライナー「扇大橋」駅徒歩12分 | ||
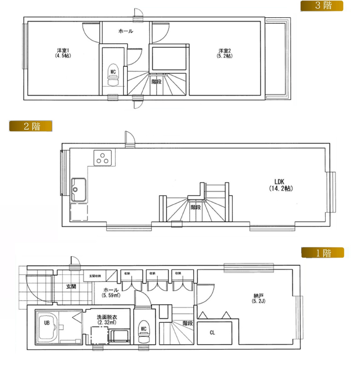
| 間取 | 3LDK | ||
| 土地面積 | 45.84m² 実測 (セットバック0.2m²) | ||
| 建物面積 | 74.52m² 実測 | ||
| 構造・規模 | 木造 3階建て | 築年・入居 | 2026年4月 |
| 建物現況 | 建築中 | 建築確認番号 | 第25UDI1S建03289号 |
| 引渡時期 | 相談 | 地目 | 宅地 |
| 用途地域 | 準工業地域 | 建ぺい率 | 80% |
| 容積率 | 200% | 都市計画 | 市街化区域 |
| 権利種類 | 所有権 | 接道 | 北東側3.6M公道に接道 |
| 小学校区 | 興本(興本扇学園)小学校(970m) | 中学校区 | 扇(興本扇学園)中学校(1120m) |
| 取引態様 | 媒介 | ||
| 設備 | 公営水道、本下水、都市ガス | ||
| 備考・制限等 | 省エネルギー性能:目安光熱費 | ||
こだわり項目
システムキッチントイレ2ヶ所リビング階段24時間換気システム保育園・幼稚園800m以内スーパー400m以内公園800m以内通風良好
- ※価格は物件の代金総額を表示しており、消費税が課税される場合は税込み価格です。(1,000円未満は切り上げ。)
税率は引き渡し時期により異なりますので、各物件の詳細につきましてはお問い合わせください。 - ※敷地権利が借地権のものは価格に権利金を含みます。
- ※制作中に内容が変更される場合もありますので、あらかじめご了承ください。
- ※購入の前には物件内容や契約条件についてご自身で十分な確認をしていただくようにお願いいたします。
- ※完成予想図はいずれも外構、植栽、外観等実際のものとは多少異なることがあります。
- ※CG合成の画像の場合、実際とは多少異なる場合があります。
周辺地図
周辺施設一覧
- ショッピングセンター
- スーパー
- コンビニ
- ドラッグストア
- ホームセンター
- 飲食店
- その他店舗
- 商店街
- 大学
- 専門学校
- 高校・高専
- 中学校
- 小学校
- 保育園
- 幼稚園
- 公民館・児童館
- 病院
- 郵便局
- 役所
- 図書館
- 金融機関
- 警察・消防
- 趣味・娯楽施設
- 公園・運動施設
- 周辺の街並み
- 駅
- その他
お問い合せ先
- 株式会社ハウスセイラーズ 本社 売買営業部
- お電話でのお問い合わせは
03-3856-0141「ホームページを見た」とお問い合わせください - 東京都足立区鹿浜7-18-1
- 営業時間:9:30〜18:30
- 定休日:毎週火曜日・水曜日
- 免許番号:東京都知事(8)第62333号




















