- 足立区の不動産ならハウスセイラーズ
- 中古住宅をエリアから探す
- 足立区
- 椿
- 足立区椿1丁目 中古戸建

■新規内装リフォーム物件、家具付き販売
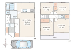
■2021年築の4LDK・2階建て、カースペース付き
■LDKはゆとりの15.5帖、2面採光の明るい空間
■会話のはずむ対面キッチンは小さなお子さまにも目が届いて安心
■浴室乾燥機付きで雨の日のお洗濯もできて安心
■全居室収納でお洋服などスッキリ収納できます
当日のご案内もお気軽にお問い合わせください。
営業時間中【9:30~18:30】はお電話でのお問い合わせがスムーズです。
■2021年築の4LDK・2階建て、カースペース付き
■LDKはゆとりの15.5帖、2面採光の明るい空間
■会話のはずむ対面キッチンは小さなお子さまにも目が届いて安心
■浴室乾燥機付きで雨の日のお洗濯もできて安心
■全居室収納でお洋服などスッキリ収納できます
当日のご案内もお気軽にお問い合わせください。
営業時間中【9:30~18:30】はお電話でのお問い合わせがスムーズです。
担当スタッフより

- 佐々木 治斗
- 新規内装リフォーム物件、家具付き販売!2021年築の4LDK・2階建て、カースペース付き。南道路につき陽当たり良好!
物件詳細情報
物件No.31022204454
| 所在地 | 東京都足立区椿1丁目 | ||
|---|---|---|---|
| 交通 | 日暮里・舎人ライナー「江北」駅徒歩18分 日暮里・舎人ライナー「西新井大師西」駅徒歩19分 東武伊勢崎線「西新井」駅バス14分 バス停「鹿浜3丁目交差点」停歩3分 |
||
| 間取 | 4LDK (LDK15.5帖、洋室5.6帖、洋室4帖) | ||
| 土地面積 | 81.47m² 公簿 | ||
| 建物面積 | 85.7m² 公簿 | ||
| 構造・規模 | 木造 2階建て | 築年月 | 2021年5月築 |
| 地目 | 宅地 | 用途地域 | 準工業地域 |
| 建ぺい率 | 60% | 容積率 | 200% |
| 都市計画 | 市街化区域 | 駐車スペース | 1台(カースペース) 料金:無料 |
| 現況 | 空家 | 引渡時期 | 相談 |
| 権利種類 | 所有権 | 接道 | 南側6M公道に接道 |
| 小学校区 | 江北小学校(940m) | 中学校区 | 江北桜中学校(1650m) |
| 取引態様 | 媒介 | ||
| 設備 | 公営水道、本下水 都市ガス,上水道,下水道,ガスキッチン,システムキッチン,カウンターキッチン,浄水器,給湯,追焚機能,トイレ2箇所,バス・トイレ別,シャワー,温水洗浄便座,洗面所,洗面台,室内洗濯機置場,浴室乾燥機,照明器具付き,複層ガラス,24時間換気システム,収納スペース,2沿線以上利用可,5年以内に内装リフォーム |
||
| 備考・制限等 | 省エネルギー性能:目安光熱費 | ||
こだわり項目
平坦地LDK15帖以上リフォーム済み全室2面採光全居室収納複層ガラス浄水器システムキッチンカウンターキッチントイレ2ヶ所温水洗浄便座浴室乾燥機浴室暖房追焚機能浴室に窓オートバス24時間換気システム保育園・幼稚園800m以内コンビニ400m以内公園800m以内通風良好
- ※価格は物件の代金総額を表示しており、消費税が課税される場合は税込み価格です。(1,000円未満は切り上げ。)
税率は引き渡し時期により異なりますので、各物件の詳細につきましてはお問い合わせください。 - ※敷地権利が借地権のものは価格に権利金を含みます。
- ※制作中に内容が変更される場合もありますので、あらかじめご了承ください。
- ※購入の前には物件内容や契約条件についてご自身で十分な確認をしていただくようにお願いいたします。
- ※完成予想図はいずれも外構、植栽、外観等実際のものとは多少異なることがあります。
- ※CG合成の画像の場合、実際とは多少異なる場合があります。
周辺地図
周辺施設一覧
- ショッピングセンター
- スーパー
- コンビニ
- ドラッグストア
- ホームセンター
- 飲食店
- その他店舗
- 商店街
- 大学
- 専門学校
- 高校・高専
- 中学校
- 小学校
- 保育園
- 幼稚園
- 公民館・児童館
- 病院
- 郵便局
- 役所
- 図書館
- 金融機関
- 警察・消防
- 趣味・娯楽施設
- 公園・運動施設
- 周辺の街並み
- 駅
- その他
お問い合せ先
- 株式会社ハウスセイラーズ 本社 売買営業部
- お電話でのお問い合わせは
03-3856-0141「ホームページを見た」とお問い合わせください - 東京都足立区鹿浜7-18-1
- 営業時間:9:30〜18:30
- 定休日:毎週火曜日・水曜日
- 免許番号:東京都知事(8)第62333号





















