- 足立区の不動産ならハウスセイラーズ
- 新築一戸建てをエリアから探す
- 足立区
- 本木南町
- 足立区本木南町 新築戸建
新築一戸建て
足立区本木南町 新築戸建
情報更新日:2026/04/12 次回更新予定日:2026/04/26
所在地東京都足立区本木南町[周辺地図]
交 通日暮里・舎人ライナー「扇大橋」駅徒歩17分




■扇大橋駅徒歩17分、日暮里・舎人ライナーで西日暮里駅・日暮里駅へのダイレクトアクセス可能
■スーパーやコンビニが近く、買物便利な立地
■プライバシーが守られる2階LDKはゆとりの18.5帖、自然と家族が集います
■リビングには足元から暖かい床暖房、ほこりが立ちにくくクリーンな空気です
■会話もはずむ対面キッチンは小さなお子さまにも目が届いて安心
■大型のウォークインクローゼットがあるので、お荷物のお片付けもラクラク
■太陽光パネル完備でランニングコストを抑えられます
■安心して永くお住まいいただけるBELS住宅
当日のご案内もお気軽にお問い合わせください。
営業時間中【9:30~18:30】はお電話でのお問い合わせがスムーズです。
■スーパーやコンビニが近く、買物便利な立地
■プライバシーが守られる2階LDKはゆとりの18.5帖、自然と家族が集います
■リビングには足元から暖かい床暖房、ほこりが立ちにくくクリーンな空気です
■会話もはずむ対面キッチンは小さなお子さまにも目が届いて安心
■大型のウォークインクローゼットがあるので、お荷物のお片付けもラクラク
■太陽光パネル完備でランニングコストを抑えられます
■安心して永くお住まいいただけるBELS住宅
当日のご案内もお気軽にお問い合わせください。
営業時間中【9:30~18:30】はお電話でのお問い合わせがスムーズです。
担当スタッフより

- 松島 勝利
- 前面道路7.4m×4mの明るい南西角地に車庫付き、設備充実の4LDK・3階建てが誕生!LDKはゆとりの18.5帖!太陽光パネル設置、安心して永くお住まいいただけるBELS住宅。
物件詳細情報
物件No.31022208487
| 所在地 | 東京都足立区本木南町 | ||
|---|---|---|---|
| 交通 | 日暮里・舎人ライナー「扇大橋」駅徒歩17分 | ||
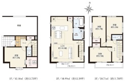
| 間取 | 4LDK | ||
| 土地面積 | 67.74m² 実測 | ||
| 建物面積 | 122.71m² (車庫面積:17.39平米) | ||
| 販売戸数 | 1戸 | 総戸数 | 全1戸 |
| 構造・規模 | 木造 3階建て | 築年・入居 | 2026年3月 |
| 建物現況 | 建築中 | 建築確認番号 | 第KBI-YKH25-10-2877号 |
| 駐車スペース | 1台(車庫) | 引渡時期 | 相談 |
| 地目 | 宅地 | 用途地域 | 準工業地域 |
| 建ぺい率 | 80% | 容積率 | 200% |
| 都市計画 | 市街化区域 | 権利種類 | 所有権 |
| 接道 | 西側7.2M公道に8.6M接道 南側4M私道に5.6M接道 |
小学校区 | 寺地小学校(790m) |
| 中学校区 | 第六中学校(320m) | 取引態様 | 媒介 |
| 設備 | 公営水道、本下水、都市ガス | ||
| 備考・制限等 | 省エネルギー性能:目安光熱費 | ||
こだわり項目
角地平坦地LDK15帖以上2面以上バルコニー床暖房食器洗浄機浄水器省エネ給湯器システムキッチンカウンターキッチントイレ2ヶ所温水洗浄便座浴室乾燥機追焚機能浴室1坪以上浴室に窓リビング階段ウォークインクローゼットTVモニタ付インターホンビルトガレージ24時間換気システム小学校800m以内保育園・幼稚園800m以内コンビニ400m以内公園800m以内陽当り良好通風良好
- ※価格は物件の代金総額を表示しており、消費税が課税される場合は税込み価格です。(1,000円未満は切り上げ。)
税率は引き渡し時期により異なりますので、各物件の詳細につきましてはお問い合わせください。 - ※敷地権利が借地権のものは価格に権利金を含みます。
- ※制作中に内容が変更される場合もありますので、あらかじめご了承ください。
- ※購入の前には物件内容や契約条件についてご自身で十分な確認をしていただくようにお願いいたします。
- ※完成予想図はいずれも外構、植栽、外観等実際のものとは多少異なることがあります。
- ※CG合成の画像の場合、実際とは多少異なる場合があります。
周辺地図
周辺施設一覧
- ショッピングセンター
- スーパー
- コンビニ
- ドラッグストア
- ホームセンター
- 飲食店
- その他店舗
- 商店街
- 大学
- 専門学校
- 高校・高専
- 中学校
- 小学校
- 保育園
- 幼稚園
- 公民館・児童館
- 病院
- 郵便局
- 役所
- 図書館
- 金融機関
- 警察・消防
- 趣味・娯楽施設
- 公園・運動施設
- 周辺の街並み
- 駅
- その他
お問い合せ先
- 株式会社ハウスセイラーズ 本社 売買営業部
- お電話でのお問い合わせは
03-3856-0141「ホームページを見た」とお問い合わせください - 東京都足立区鹿浜7-18-1
- 営業時間:9:30〜18:30
- 定休日:毎週火曜日・水曜日
- 免許番号:東京都知事(8)第62333号



















