- 足立区の不動産ならハウスセイラーズ
- 新築一戸建てをエリアから探す
- 足立区
- 関原
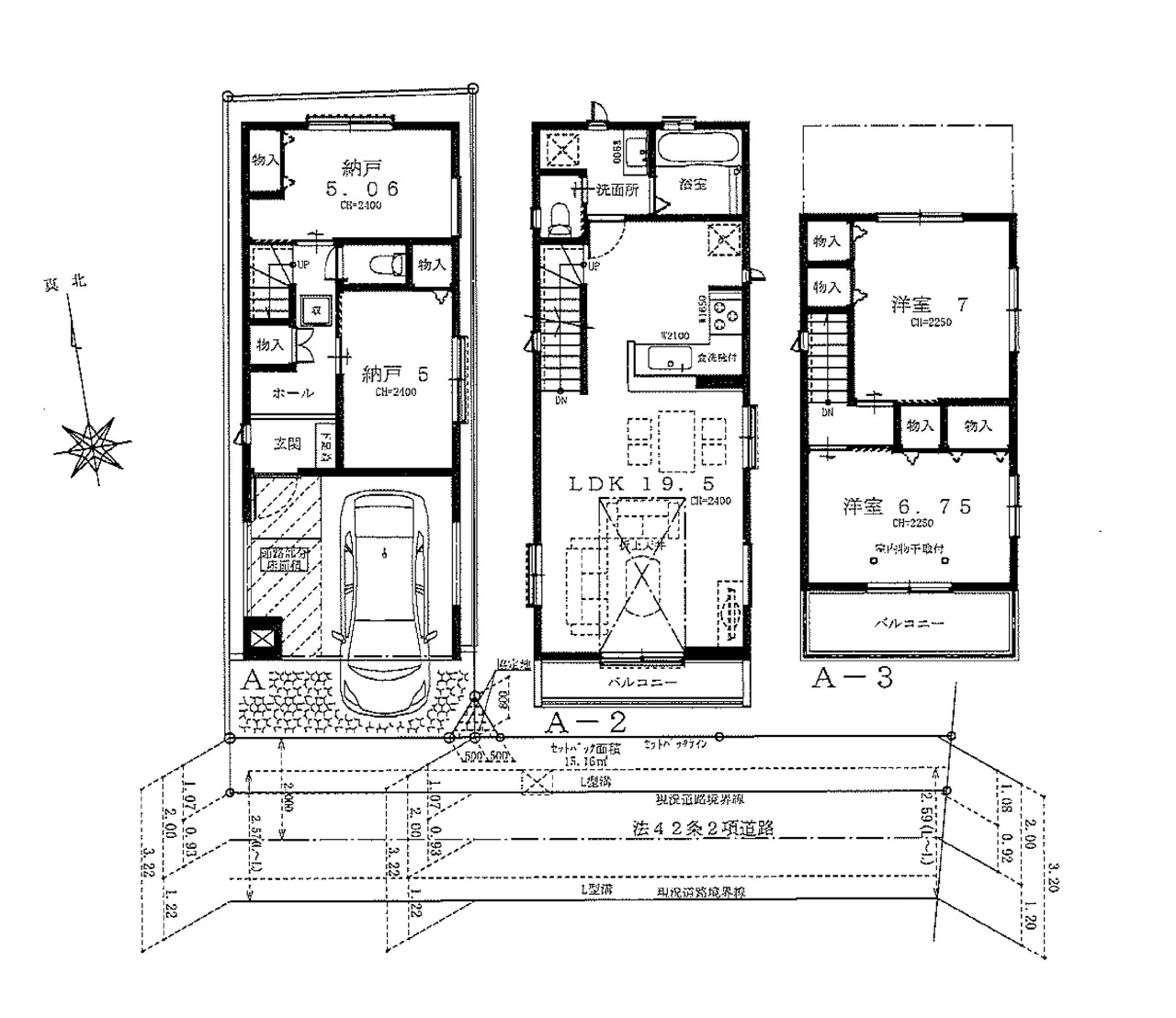
- 足立区関原2丁目 新築戸建


■谷在家駅徒歩7分、日比谷線直通電車で都内へのアクセス良好
■周辺に買い物施設のそろう便利な住環境
■プライバシーが守られる2階LDKはゆとりの19.5帖、自然と家族が集います
■会話もはずむ対面キッチンは小さなお子さまにも目が届いて安心
■キッチンには食洗機付きで家事の時短をサポート
■2面バルコニー付きでお洗濯やお布団干しもラクラク
■安心して永くお住まいいただける設計住宅性能評価&建設住宅性能評価取得
当日のご案内もお気軽にお問い合わせください。
営業時間中【9:30~18:30】はお電話でのお問い合わせがスムーズです。
■周辺に買い物施設のそろう便利な住環境
■プライバシーが守られる2階LDKはゆとりの19.5帖、自然と家族が集います
■会話もはずむ対面キッチンは小さなお子さまにも目が届いて安心
■キッチンには食洗機付きで家事の時短をサポート
■2面バルコニー付きでお洗濯やお布団干しもラクラク
■安心して永くお住まいいただける設計住宅性能評価&建設住宅性能評価取得
当日のご案内もお気軽にお問い合わせください。
営業時間中【9:30~18:30】はお電話でのお問い合わせがスムーズです。
担当スタッフより

- 服部 謙介
- 梅島駅徒歩13分!周辺に買い物施設のそろう便利な住環境。カースペース付き設備充実の2LDK+2S(納戸)・3階建て!安心して永くお住まいいただける設計住宅性能評価&建設住宅性能評価取得!
物件詳細情報
物件No.31022928592
| 所在地 | 東京都足立区関原2丁目 | ||
|---|---|---|---|
| 交通 | 東武伊勢崎線「梅島」駅徒歩13分 | ||
| 間取 | 4LDK | ||
| 土地面積 | 61.04m² | ||
| 建物面積 | 117.92m² | ||
| 販売戸数 | 1戸 | 総戸数 | 全1戸 |
| 構造・規模 | 木造 3階建て | 築年・入居 | 2026年3月 |
| 建物現況 | 建築中 | 駐車スペース | 1台(車庫) |
| 引渡時期 | 相談 | 地目 | 宅地 |
| 用途地域 | 準工業地域 | 建ぺい率 | 80% |
| 容積率 | 200% | 都市計画 | 市街化区域 |
| 権利種類 | 所有権 | 小学校区 | 梅島第二小学校(490m) |
| 中学校区 | 第九中学校(620m) | 取引態様 | 媒介 |
| 設備 | 公営水道、本下水、都市ガス | ||
| その他制限事項 | 高度地区、防火地域 | ||
| 備考・制限等 | 第三種高度地区、新たな防火規制区域、準防火地域 | ||
こだわり項目
平坦地南側道路LDK15帖以上全居室収納食器洗浄機システムキッチンカウンターキッチン3口以上コンロトイレ2ヶ所温水洗浄便座浴室乾燥機追焚機能浴室1坪以上浴室に窓リビング階段24時間換気システム小学校800m以内保育園・幼稚園800m以内コンビニ400m以内公園800m以内陽当り良好通風良好
- ※価格は物件の代金総額を表示しており、消費税が課税される場合は税込み価格です。(1,000円未満は切り上げ。)
税率は引き渡し時期により異なりますので、各物件の詳細につきましてはお問い合わせください。 - ※敷地権利が借地権のものは価格に権利金を含みます。
- ※制作中に内容が変更される場合もありますので、あらかじめご了承ください。
- ※購入の前には物件内容や契約条件についてご自身で十分な確認をしていただくようにお願いいたします。
- ※完成予想図はいずれも外構、植栽、外観等実際のものとは多少異なることがあります。
- ※CG合成の画像の場合、実際とは多少異なる場合があります。
周辺地図
周辺施設一覧
- ショッピングセンター
- スーパー
- コンビニ
- ドラッグストア
- ホームセンター
- 飲食店
- その他店舗
- 商店街
- 大学
- 専門学校
- 高校・高専
- 中学校
- 小学校
- 保育園
- 幼稚園
- 公民館・児童館
- 病院
- 郵便局
- 役所
- 図書館
- 金融機関
- 警察・消防
- 趣味・娯楽施設
- 公園・運動施設
- 周辺の街並み
- 駅
- その他
お問い合せ先
- 株式会社ハウスセイラーズ 本社 売買営業部
- お電話でのお問い合わせは
03-3856-0141「ホームページを見た」とお問い合わせください - 東京都足立区鹿浜7-18-1
- 営業時間:9:30〜18:30
- 定休日:毎週火曜日・水曜日
- 免許番号:東京都知事(8)第62333号



















