- 足立区の不動産ならハウスセイラーズ
- 土地をエリアから探す
- 足立区
- 舎人
- 足立区舎人3丁目 売地 全2区画
土地
足立区舎人3丁目 売地 全2区画
情報更新日:2026/04/13 次回更新予定日:2026/04/27 取引条件有効期限:2026/04/27
所在地東京都足立区舎人3丁目[周辺地図]
交 通日暮里・舎人ライナー「見沼代親水公園」駅徒歩8分

■『見沼代親水公園』駅徒歩8分の好立地!
■全2区画のコミュニティが誕生!
■建築条件はありません。
■お好みのハウスメーカーで建築が可能です。
当日のご案内もお気軽にお問い合わせください。
営業時間中【9:30~18:30】はお電話でのお問い合わせがスムーズです。
■全2区画のコミュニティが誕生!
■建築条件はありません。
■お好みのハウスメーカーで建築が可能です。
当日のご案内もお気軽にお問い合わせください。
営業時間中【9:30~18:30】はお電話でのお問い合わせがスムーズです。
担当スタッフより

- 松島 勝利
- 『見沼代親水公園』駅徒歩8分の好立地!全2区画のコミュニティが誕生!建築条件はありません。お好みのハウスメーカーで建築が可能です。
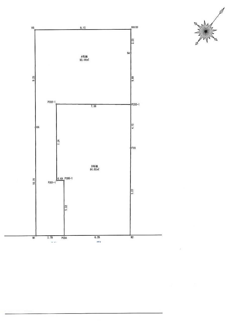
各棟情報
物件詳細情報
物件No.20000443945
| 所在地 | 東京都足立区舎人3丁目 | ||
|---|---|---|---|
| 交通 | 日暮里・舎人ライナー「見沼代親水公園」駅徒歩8分 日暮里・舎人ライナー「舎人」駅徒歩11分 |
||
| 土地面積 | 84.02m² ~ 93.44m² 公簿 | ||
| 販売区画数 | 2区画 | 総区画数 | 全2区画 |
| 用途地域 | 第一種低層住居専用地域 | 建ぺい率 | 50% |
| 容積率 | 150% | 都市計画 | 市街化区域 |
| 建築条件 | 建築条件なし | 地目 | 宅地 |
| 現況 | 古家付 | 引渡時期 | 期日指定有(2026年5月中旬) |
| 権利種類 | 所有権 | 接道 | 南東側7.4M公道に接道 |
| 小学校区 | 舎人第一小学校(1140m) | 中学校区 | 入谷南中学校(1420m) |
| 取引態様 | 媒介 | ||
こだわり項目
平坦地公園800m以内
- ※価格は物件の代金総額を表示しており、消費税が課税される場合は税込み価格です。(1,000円未満は切り上げ。)
税率は引き渡し時期により異なりますので、各物件の詳細につきましてはお問い合わせください。 - ※敷地権利が借地権のものは価格に権利金を含みます。
- ※制作中に内容が変更される場合もありますので、あらかじめご了承ください。
- ※購入の前には物件内容や契約条件についてご自身で十分な確認をしていただくようにお願いいたします。
- ※完成予想図はいずれも外構、植栽、外観等実際のものとは多少異なることがあります。
- ※CG合成の画像の場合、実際とは多少異なる場合があります。
周辺地図
周辺施設一覧
- ショッピングセンター
- スーパー
- コンビニ
- ドラッグストア
- ホームセンター
- 飲食店
- その他店舗
- 商店街
- 大学
- 専門学校
- 高校・高専
- 中学校
- 小学校
- 保育園
- 幼稚園
- 公民館・児童館
- 病院
- 郵便局
- 役所
- 図書館
- 金融機関
- 警察・消防
- 趣味・娯楽施設
- 公園・運動施設
- 周辺の街並み
- 駅
- その他
お問い合せ先
- 株式会社ハウスセイラーズ 本社 売買営業部
- お電話でのお問い合わせは
03-3856-0141「ホームページを見た」とお問い合わせください - 東京都足立区鹿浜7-18-1
- 営業時間:9:30〜18:30
- 定休日:毎週火曜日・水曜日
- 免許番号:東京都知事(8)第62333号
- 足立区の不動産ならハウスセイラーズ
- 土地をエリアから探す
- 足立区
- 舎人
- 足立区舎人3丁目 売地 全2区画
















