


■『扇大橋』駅徒歩2分の好立地!
■9階部分、角部屋につき、陽当たり、眺望良好!
■2019年大規模修繕工事実施済!
当日のご案内もお気軽にお問い合わせください。
営業時間中【9:30~18:30】はお電話でのお問い合わせがスムーズです。
■9階部分、角部屋につき、陽当たり、眺望良好!
■2019年大規模修繕工事実施済!
当日のご案内もお気軽にお問い合わせください。
営業時間中【9:30~18:30】はお電話でのお問い合わせがスムーズです。
担当スタッフより

- 石橋 裕之
- 『扇大橋』駅徒歩2分の好立地!9階部分、角部屋につき、陽当たり、眺望良好!2019年大規模修繕工事実施済!
物件詳細情報
物件No.31022990398
| 所在地 | 東京都足立区扇3丁目 | ||
|---|---|---|---|
| 交通 | 日暮里・舎人ライナー「扇大橋」駅徒歩2分 日暮里・舎人ライナー「高野」駅徒歩4分 |
||
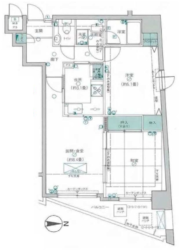
| 間取 | 2LDK | ||
| 専有面積 | 56.96m² | ||
| 総戸数 | 全39戸 | 構造・規模 | 鉄骨鉄筋コンクリート造 11階建て 9階部分 |
| 築年・入居 | 1992年4月築 | 現況 | 空室 |
| 引渡時期 | 即引渡可 | 権利種類 | 所有権 |
| 管理費 | 8,550円/月 | 修繕積立金 | 12,890円/月 |
| 管理形態 | 日勤 全部委託 | 小学校区 | 興本(興本扇学園)小学校(850m) |
| 中学校区 | 扇(興本扇学園)中学校(870m) | 取引態様 | 媒介 |
| 設備 | バス・トイレ別,室内洗濯機置場,エレベータ,管理人 バルコニー 日当り良好 角部屋 |
||
| 備考・制限等 | 省エネルギー性能:目安光熱費 | ||
こだわり項目
角部屋室内洗濯機置き場エレベータースーパー400m以内コンビニ400m以内公園800m以内
- ※価格は物件の代金総額を表示しており、消費税が課税される場合は税込み価格です。(1,000円未満は切り上げ。)
税率は引き渡し時期により異なりますので、各物件の詳細につきましてはお問い合わせください。 - ※敷地権利が借地権のものは価格に権利金を含みます。
- ※制作中に内容が変更される場合もありますので、あらかじめご了承ください。
- ※購入の前には物件内容や契約条件についてご自身で十分な確認をしていただくようにお願いいたします。
- ※完成予想図はいずれも外構、植栽、外観等実際のものとは多少異なることがあります。
- ※CG合成の画像の場合、実際とは多少異なる場合があります。
周辺地図
周辺施設一覧
- ショッピングセンター
- スーパー
- コンビニ
- ドラッグストア
- ホームセンター
- 飲食店
- その他店舗
- 商店街
- 大学
- 専門学校
- 高校・高専
- 中学校
- 小学校
- 保育園
- 幼稚園
- 公民館・児童館
- 病院
- 郵便局
- 役所
- 図書館
- 金融機関
- 警察・消防
- 趣味・娯楽施設
- 公園・運動施設
- 周辺の街並み
- 駅
- その他
お問い合せ先
- 株式会社ハウスセイラーズ 本社 売買営業部
- お電話でのお問い合わせは
03-3856-0141「ホームページを見た」とお問い合わせください - 東京都足立区鹿浜7-18-1
- 営業時間:9:30〜18:30
- 定休日:毎週火曜日・水曜日
- 免許番号:東京都知事(8)第62333号















