- 足立区の不動産ならハウスセイラーズ
- 新築一戸建てをエリアから探す
- 足立区
- 西伊興
- 2号棟 足立区西伊興4丁目 新築戸建 全3棟
新築一戸建て
2号棟 足立区西伊興4丁目 新築戸建 全3棟
情報更新日:2026/04/13 次回更新予定日:2026/04/27
所在地東京都足立区西伊興2丁目[周辺地図]
交 通日暮里・舎人ライナー「舎人公園」駅徒歩12分

各棟4部屋+LDK。LDK17帖以上のゆとりある間取、人気の2階建て、カースペースあり!
■各棟LDK17帖以上と広々
■人気の2階建て4部屋+LDK
■カースペースあり
■暮らしを彩る充実の設備・仕様
■区画整理されたきれいな街並み
■都内有数の舎人公園近く戸建てにも優しい住環境
当日のご案内もお気軽にお問い合わせください。
営業時間中【9:30~18:30】はお電話でのお問い合わせがスムーズです。
■各棟LDK17帖以上と広々
■人気の2階建て4部屋+LDK
■カースペースあり
■暮らしを彩る充実の設備・仕様
■区画整理されたきれいな街並み
■都内有数の舎人公園近く戸建てにも優しい住環境
当日のご案内もお気軽にお問い合わせください。
営業時間中【9:30~18:30】はお電話でのお問い合わせがスムーズです。
担当スタッフより

- 服部 謙介
- 各棟4部屋+LDK。LDK17帖以上のゆとりある間取、人気の2階建て、カースペースあり!
各棟情報
物件詳細情報
物件No.31023234764-001
| 所在地 | 東京都足立区西伊興2丁目 | ||
|---|---|---|---|
| 交通 | 日暮里・舎人ライナー「舎人公園」駅徒歩12分 | ||
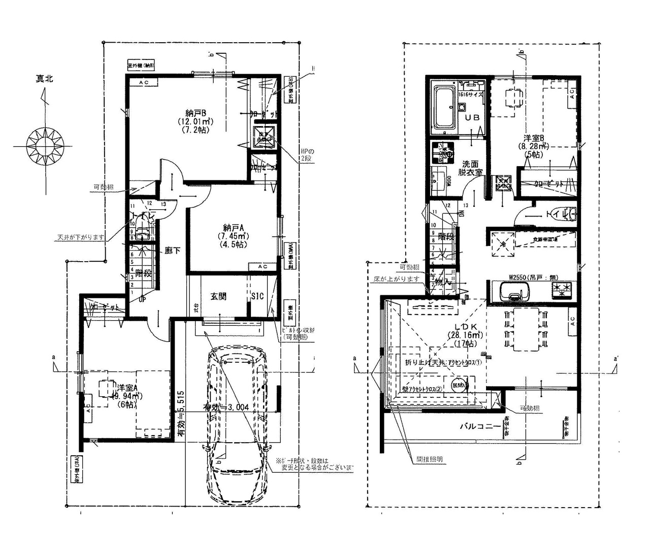
| 間取 | 2SLDK + S | ||
| 土地面積 | 89.12m² | ||
| 建物面積 | 101.33m² | ||
| 販売戸数 | 2戸 | 総戸数 | 全3戸 |
| 構造・規模 | 木造 2階建て | 築年・入居 | 2026年5月 |
| 建物現況 | 建築中 | 建築確認番号 | 第BNV確済25-851号 |
| 引渡時期 | 相談 | 施工会社 | 第BNV確済25-851号他 |
| 地目 | 宅地 | 用途地域 | 第一種中高層住居専用地域 |
| 建ぺい率 | 50% | 容積率 | 150% |
| 都市計画 | 市街化区域 | 権利種類 | 所有権 |
| 接道 | 南側11.4M公道に接道 西側11.4M公道に接道 |
小学校区 | 西伊興小学校(690m) |
| 中学校区 | 伊興中学校(1000m) | 取引態様 | 媒介 |
| 備考・制限等 | 省エネルギー性能:目安光熱費 | ||
こだわり項目
小学校800m以内公園800m以内
- ※価格は物件の代金総額を表示しており、消費税が課税される場合は税込み価格です。(1,000円未満は切り上げ。)
税率は引き渡し時期により異なりますので、各物件の詳細につきましてはお問い合わせください。 - ※敷地権利が借地権のものは価格に権利金を含みます。
- ※制作中に内容が変更される場合もありますので、あらかじめご了承ください。
- ※購入の前には物件内容や契約条件についてご自身で十分な確認をしていただくようにお願いいたします。
- ※完成予想図はいずれも外構、植栽、外観等実際のものとは多少異なることがあります。
- ※CG合成の画像の場合、実際とは多少異なる場合があります。
周辺地図
周辺施設一覧
- ショッピングセンター
- スーパー
- コンビニ
- ドラッグストア
- ホームセンター
- 飲食店
- その他店舗
- 商店街
- 大学
- 専門学校
- 高校・高専
- 中学校
- 小学校
- 保育園
- 幼稚園
- 公民館・児童館
- 病院
- 郵便局
- 役所
- 図書館
- 金融機関
- 警察・消防
- 趣味・娯楽施設
- 公園・運動施設
- 周辺の街並み
- 駅
- その他
お問い合せ先
- 株式会社ハウスセイラーズ 本社 売買営業部
- お電話でのお問い合わせは
03-3856-0141「ホームページを見た」とお問い合わせください - 東京都足立区鹿浜7-18-1
- 営業時間:9:30〜18:30
- 定休日:毎週火曜日・水曜日
- 免許番号:東京都知事(8)第62333号
- 足立区の不動産ならハウスセイラーズ
- 新築一戸建てをエリアから探す
- 足立区
- 西伊興
- 2号棟 足立区西伊興4丁目 新築戸建 全3棟

















