- 足立区の不動産ならハウスセイラーズ
- 中古マンションをエリアから探す
- 足立区
- 西新井栄町
- ザ・ステージオガーデンフロントタワー
中古マンション
ザ・ステージオガーデンフロントタワー
情報更新日:2026/04/17 次回更新予定日:2026/05/01
所在地東京都足立区西新井栄町1丁目[周辺地図]
交 通東武伊勢崎線「西新井」駅徒歩5分



■『西新井』駅徒歩5分の好立地!
■総戸数276戸のビッグコミュニティ!
■15階部分につき、陽当たり、眺望良好!
■新規内装リノベーション実施!
■LDKはゆとりの17帖!
■対面式のキッチンからはリビングを見渡せます。
■大切なペットと暮らせるマンション!
■保育園や小中学校が近く、子育て世帯にも嬉しい住環境。
当日のご案内もお気軽にお問い合わせください。
営業時間中【9:30~18:30】はお電話でのお問い合わせがスムーズです。
■総戸数276戸のビッグコミュニティ!
■15階部分につき、陽当たり、眺望良好!
■新規内装リノベーション実施!
■LDKはゆとりの17帖!
■対面式のキッチンからはリビングを見渡せます。
■大切なペットと暮らせるマンション!
■保育園や小中学校が近く、子育て世帯にも嬉しい住環境。
当日のご案内もお気軽にお問い合わせください。
営業時間中【9:30~18:30】はお電話でのお問い合わせがスムーズです。
担当スタッフより

- 石橋 裕之
- 『西新井』駅徒歩5分の好立地!総戸数276戸のビッグコミュニティ!15階部分につき、陽当たり、眺望良好!新規内装リノベーション実施!LDKはゆとりの17帖!対面式のキッチンからはリビングを見渡せます。大切なペットと暮らせるマンション!保育園や小中学校が近く、子育て世帯にも嬉しい住環境。
物件詳細情報
物件No.31023445001
| 所在地 | 東京都足立区西新井栄町1丁目 | ||
|---|---|---|---|
| 交通 | 東武伊勢崎線「西新井」駅徒歩5分 | ||
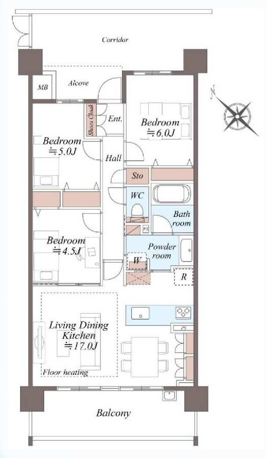
| 間取 | 3LDK | ||
| 専有面積 | 73.02m² (壁芯) | ||
| バルコニー面積 | 11.97m² 南西向き | ||
| 総戸数 | 全276戸 | 構造・規模 | 鉄筋コンクリート造 20階建て 地下1階 15階部分 |
| 築年・入居 | 2006年12月築 | 施工会社 | (株)淺沼組 |
| 現況 | 空室 | 引渡時期 | 相談 |
| 権利種類 | 所有権 | 管理費 | 15,751円/月 |
| 修繕積立金 | 16,980円/月 | 管理形態 | 日勤 全部委託 |
| 駐車場 | 敷地内にあり 料金:10,000円/月 | ペット | 可 |
| 小学校区 | 栗原小学校(240m) | 中学校区 | 第七中学校(260m) |
| 取引態様 | 媒介 | ||
| リフォーム |
|
||
| 設備 | 公営水道、本下水 都市ガス,上水道,下水道,システムキッチン,カウンターキッチン,食器洗浄乾燥機,追焚機能,トイレ専用,バス・トイレ別,シャワー,温水洗浄便座,洗面所,洗面台,洗濯機置場,浴室乾燥機,インターネット対応,24時間換気システム,収納スペース,エレベータ,宅配ボックス,駐輪場,バイク置き場,オートロック,モニター付きインターホン,ペット相談 |
||
| 備考・制限等 | 省エネルギー性能:目安光熱費 | ||
こだわり項目
食器洗浄機システムキッチンカウンターキッチン温水洗浄便座浴室乾燥機追焚機能室内洗濯機置き場TVモニタ付インターホンオートロック24時間宅配ボックスエレベーター駐輪場24時間換気システム小学校800m以内保育園・幼稚園800m以内スーパー400m以内コンビニ400m以内公園800m以内
- ※価格は物件の代金総額を表示しており、消費税が課税される場合は税込み価格です。(1,000円未満は切り上げ。)
税率は引き渡し時期により異なりますので、各物件の詳細につきましてはお問い合わせください。 - ※敷地権利が借地権のものは価格に権利金を含みます。
- ※制作中に内容が変更される場合もありますので、あらかじめご了承ください。
- ※購入の前には物件内容や契約条件についてご自身で十分な確認をしていただくようにお願いいたします。
- ※完成予想図はいずれも外構、植栽、外観等実際のものとは多少異なることがあります。
- ※CG合成の画像の場合、実際とは多少異なる場合があります。
周辺地図
周辺施設一覧
- ショッピングセンター
- スーパー
- コンビニ
- ドラッグストア
- ホームセンター
- 飲食店
- その他店舗
- 商店街
- 大学
- 専門学校
- 高校・高専
- 中学校
- 小学校
- 保育園
- 幼稚園
- 公民館・児童館
- 病院
- 郵便局
- 役所
- 図書館
- 金融機関
- 警察・消防
- 趣味・娯楽施設
- 公園・運動施設
- 周辺の街並み
- 駅
- その他
お問い合せ先
- 株式会社ハウスセイラーズ 本社 売買営業部
- お電話でのお問い合わせは
03-3856-0141「ホームページを見た」とお問い合わせください - 東京都足立区鹿浜7-18-1
- 営業時間:9:30〜18:30
- 定休日:毎週火曜日・水曜日
- 免許番号:東京都知事(8)第62333号
- 足立区の不動産ならハウスセイラーズ
- 中古マンションをエリアから探す
- 足立区
- 西新井栄町
- ザ・ステージオガーデンフロントタワー

















