- 足立区の不動産ならハウスセイラーズ
- 中古マンションをエリアから探す
- 足立区
- 鹿浜
- マ・トール鹿浜ライフスクエア
中古マンション

マ・トール鹿浜ライフスクエア
情報更新日:2026/04/13 次回更新予定日:2026/04/27
所在地東京都足立区鹿浜1丁目[周辺地図]
交 通京浜東北・根岸線「王子」駅バス17分 停歩3分




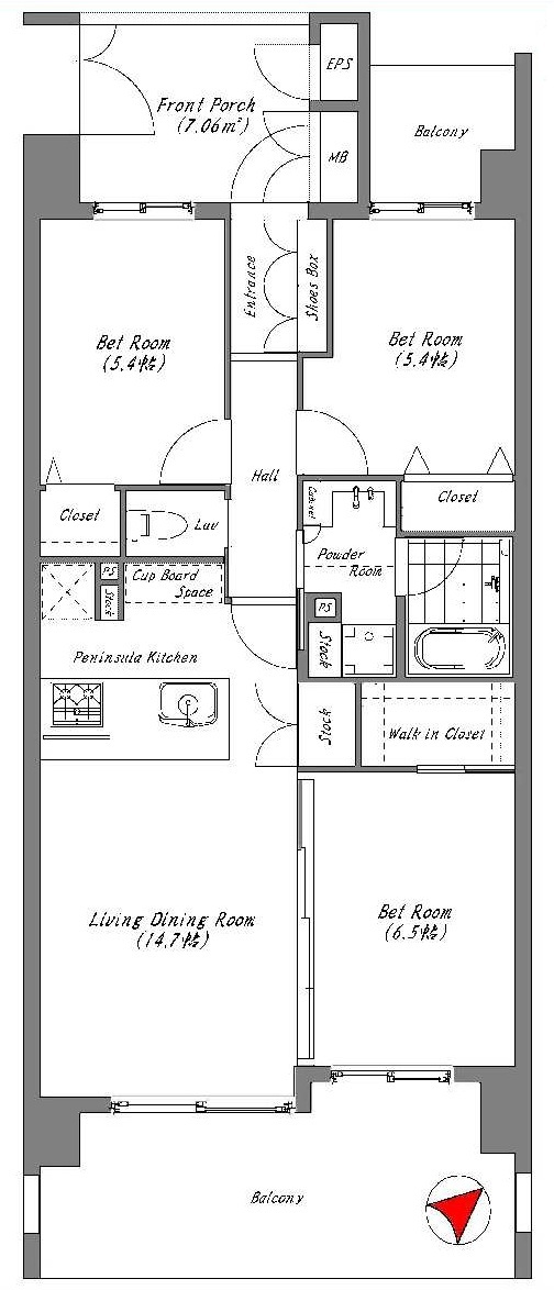
■LDKはひろびろ14.7帖!
■対面式のキッチンからはリビングを見渡せます。
■各居室に収納あり。ウォークインクローゼットもあるので、季節ものなど大きな荷物もしまえ、お片付けもラクラク。お部屋をスッキリ使えます。
当日のご案内もお気軽にお問い合わせください。
営業時間中【9:30~18:30】はお電話でのお問い合わせがスムーズです。
■対面式のキッチンからはリビングを見渡せます。
■各居室に収納あり。ウォークインクローゼットもあるので、季節ものなど大きな荷物もしまえ、お片付けもラクラク。お部屋をスッキリ使えます。
当日のご案内もお気軽にお問い合わせください。
営業時間中【9:30~18:30】はお電話でのお問い合わせがスムーズです。
担当スタッフより

- 石橋 裕也
- LDKはひろびろ14.7帖!対面式のキッチンからはリビングを見渡せます。各居室に収納あり。ウォークインクローゼットもあるので、季節ものなど大きな荷物もしまえ、お片付けもラクラク。お部屋をスッキリ使えます。
物件詳細情報
物件No.31023643996
| 所在地 | 東京都足立区鹿浜1丁目 | ||
|---|---|---|---|
| 交通 | 京浜東北・根岸線「王子」駅バス17分 バス停「鹿浜橋」停歩3分 埼京線「赤羽」駅バス23分 バス停「鹿浜橋」停歩3分 |
||
| 間取 | 3LDK | ||
| 専有面積 | 64.51m² (壁芯) | ||
| バルコニー面積 | 16.54m² 南東向き | ||
| 総戸数 | 全85戸 | 構造・規模 | 鉄筋コンクリート造 15階建て 6階部分 |
| 築年・入居 | 2006年10月築 | 施工会社 | 村本建設(株) |
| 現況 | 空室 | 引渡時期 | 即引渡可 |
| 権利種類 | 所有権 | 管理費 | 9,310円/月 |
| 修繕積立金 | 12,130円/月 | 管理形態 | 日勤 全部委託 |
| 管理会社 | 日本ハウズイング(株) | 駐車場 | 敷地内にあり 料金:11,500 ~ 21,000円/月 |
| 小学校区 | 鹿浜未来小学校(1250m) | 中学校区 | 鹿浜菜の花中学校(1560m) |
| 取引態様 | 媒介 | ||
| リフォーム |
|
||
| 備考・制限等 | 2026年4月リフォーム済(室内全面改修工事) 省エネルギー性能:目安光熱費 |
||
こだわり項目
食器洗浄機浄水器システムキッチン3口以上コンロ室内洗濯機置き場ウォークインクローゼットオートロックエレベーター
- ※価格は物件の代金総額を表示しており、消費税が課税される場合は税込み価格です。(1,000円未満は切り上げ。)
税率は引き渡し時期により異なりますので、各物件の詳細につきましてはお問い合わせください。 - ※敷地権利が借地権のものは価格に権利金を含みます。
- ※制作中に内容が変更される場合もありますので、あらかじめご了承ください。
- ※購入の前には物件内容や契約条件についてご自身で十分な確認をしていただくようにお願いいたします。
- ※完成予想図はいずれも外構、植栽、外観等実際のものとは多少異なることがあります。
- ※CG合成の画像の場合、実際とは多少異なる場合があります。
周辺地図
周辺施設一覧
- ショッピングセンター
- スーパー
- コンビニ
- ドラッグストア
- ホームセンター
- 飲食店
- その他店舗
- 商店街
- 大学
- 専門学校
- 高校・高専
- 中学校
- 小学校
- 保育園
- 幼稚園
- 公民館・児童館
- 病院
- 郵便局
- 役所
- 図書館
- 金融機関
- 警察・消防
- 趣味・娯楽施設
- 公園・運動施設
- 周辺の街並み
- 駅
- その他
お問い合せ先
- 株式会社ハウスセイラーズ 本社 売買営業部
- お電話でのお問い合わせは
03-3856-0141「ホームページを見た」とお問い合わせください - 東京都足立区鹿浜7-18-1
- 営業時間:9:30〜18:30
- 定休日:毎週火曜日・水曜日
- 免許番号:東京都知事(8)第62333号




















