- 足立区の不動産ならハウスセイラーズ
- 新築一戸建てをエリアから探す
- 足立区
- 梅田
- 足立区梅田1丁目 新築戸建





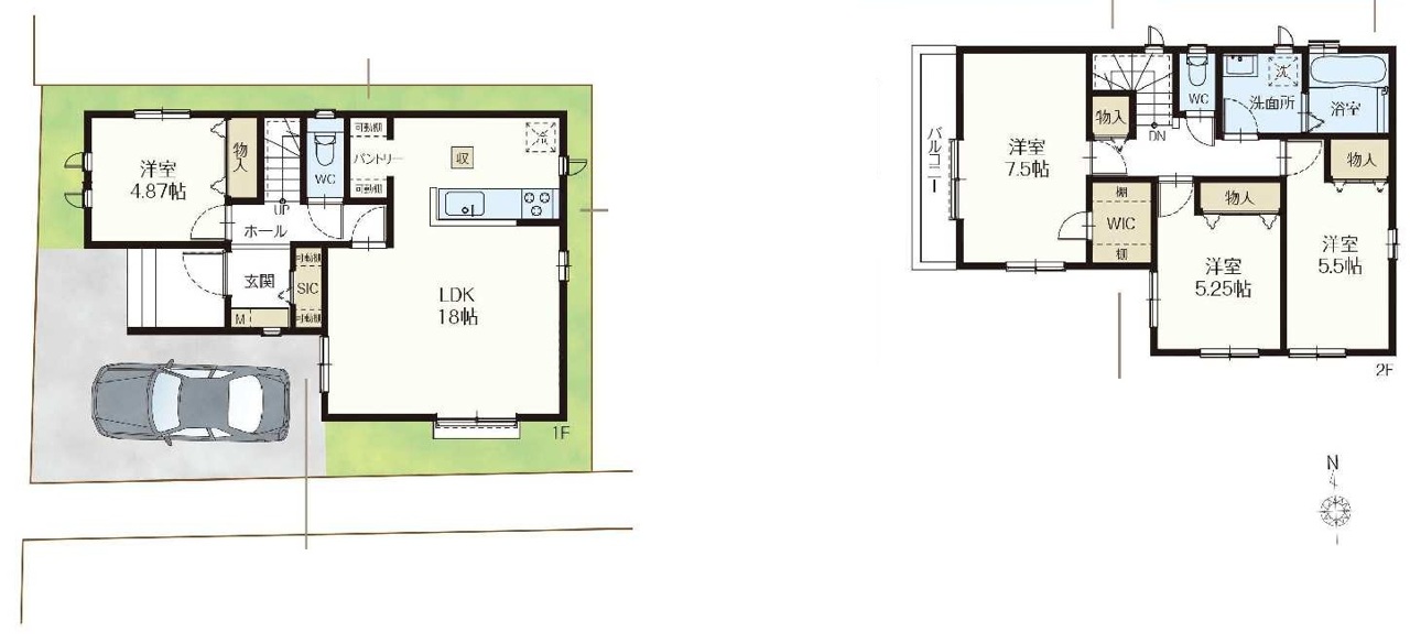
■人気の2階建て、4部屋!
■LDKはゆとりの18帖!
■対面式のキッチンからはリビングを見渡せます。
■収納豊富。各居室に収納あり。ウォークインクローゼットもあるので、季節ものなど大きな荷物もしまえ、お片付けもラクラク。お部屋をスッキリ使えます。
■玄関にはシューズインクローゼット。散らかりがちな玄関もスッキリ収納。
当日のご案内もお気軽にお問い合わせください。
営業時間中【9:30~18:30】はお電話でのお問い合わせがスムーズです。
■LDKはゆとりの18帖!
■対面式のキッチンからはリビングを見渡せます。
■収納豊富。各居室に収納あり。ウォークインクローゼットもあるので、季節ものなど大きな荷物もしまえ、お片付けもラクラク。お部屋をスッキリ使えます。
■玄関にはシューズインクローゼット。散らかりがちな玄関もスッキリ収納。
当日のご案内もお気軽にお問い合わせください。
営業時間中【9:30~18:30】はお電話でのお問い合わせがスムーズです。
担当スタッフより

- 藤野 晃次
- 人気の2階建て、4部屋!LDKはゆとりの18帖!対面式のキッチンからはリビングを見渡せます。収納豊富。各居室に収納あり。ウォークインクローゼットもあるので、季節ものなど大きな荷物もしまえ、お片付けもラクラク。お部屋をスッキリ使えます。玄関にはシューズインクローゼット。散らかりがちな玄関もスッキリ収納。
物件詳細情報
物件No.31023917078
| 所在地 | 東京都足立区梅田1丁目 | ||
|---|---|---|---|
| 交通 | 東武伊勢崎線「五反野」駅徒歩13分 東武伊勢崎線「梅島」駅徒歩14分 |
||
| 間取 | 4LDK (LDK18帖、洋室4.8帖、洋室5.2帖、洋室5.5帖、洋室7.5帖) | ||
| 土地面積 | 97.13m² 公簿 | ||
| 建物面積 | 99.78m² 公簿 | ||
| 構造・規模 | 木造 2階建て | 築年・入居 | 2026年4月 |
| 建物現況 | 建築中 | 引渡時期 | 相談 |
| 地目 | 宅地 | 用途地域 | 準工業地域 |
| 建ぺい率 | 80% | 容積率 | 240% |
| 都市計画 | 市街化区域 | 権利種類 | 所有権 |
| 接道 | 西側4M公道に接道 | 小学校区 | 梅島第二小学校(730m) |
| 中学校区 | 第四中学校(1060m) | 取引態様 | 媒介 |
| 備考・制限等 | 省エネルギー性能:目安光熱費 | ||
こだわり項目
平坦地LDK15帖以上全居室収納食器洗浄機システムキッチントイレ2ヶ所ウォークインクローゼットシューズインクローゼット小学校800m以内保育園・幼稚園800m以内スーパー400m以内コンビニ400m以内
- ※価格は物件の代金総額を表示しており、消費税が課税される場合は税込み価格です。(1,000円未満は切り上げ。)
税率は引き渡し時期により異なりますので、各物件の詳細につきましてはお問い合わせください。 - ※敷地権利が借地権のものは価格に権利金を含みます。
- ※制作中に内容が変更される場合もありますので、あらかじめご了承ください。
- ※購入の前には物件内容や契約条件についてご自身で十分な確認をしていただくようにお願いいたします。
- ※完成予想図はいずれも外構、植栽、外観等実際のものとは多少異なることがあります。
- ※CG合成の画像の場合、実際とは多少異なる場合があります。
周辺地図
周辺施設一覧
- ショッピングセンター
- スーパー
- コンビニ
- ドラッグストア
- ホームセンター
- 飲食店
- その他店舗
- 商店街
- 大学
- 専門学校
- 高校・高専
- 中学校
- 小学校
- 保育園
- 幼稚園
- 公民館・児童館
- 病院
- 郵便局
- 役所
- 図書館
- 金融機関
- 警察・消防
- 趣味・娯楽施設
- 公園・運動施設
- 周辺の街並み
- 駅
- その他
お問い合せ先
- 株式会社ハウスセイラーズ 本社 売買営業部
- お電話でのお問い合わせは
03-3856-0141「ホームページを見た」とお問い合わせください - 東京都足立区鹿浜7-18-1
- 営業時間:9:30〜18:30
- 定休日:毎週火曜日・水曜日
- 免許番号:東京都知事(8)第62333号
















